劉亮均建築師事務所 乙案設計工程有限公司
Architecture· Landscape· Inter Design
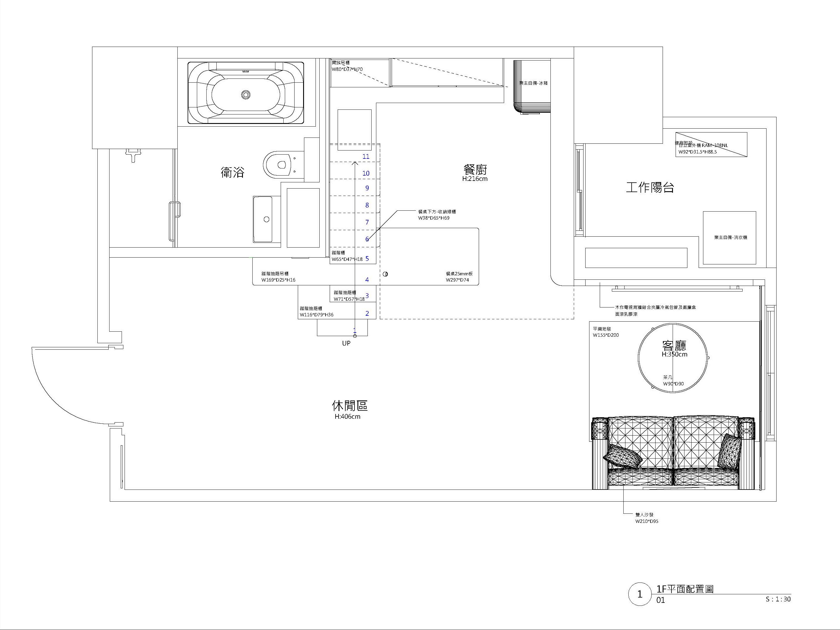
空間性質:1廳1房1衛
使用成員:單身女性
空間面積:47m2
主要建材:烤漆鐵件、乳膠漆、碳化角材、E0級系統板、耐磨木地板
樓高:淨高420cm
座落位置:台中市文心南路
本案以「垂直延伸 × 溫潤包覆」為核心概念,回應47m²、淨高420cm的稀有條件,為單身女性打造一處兼具獨立私密與開放交流的生活空間。利用高挑樓高創造夾層,將生活機能垂直分層,保留下層的開闊與流動感,上層則成為專屬的靜謐私領域。
材質選擇上,採用E0級系統板與耐磨木地板營造健康且低甲醛的居住環境,搭配碳化角材與乳膠漆帶來自然溫潤的手感,並以烤漆鐵件為結構與細節收邊,塑造俐落且現代的線條感。整體色彩以柔和中性色為基底,點綴沉穩木質與金屬質感,展現女性獨立自信與溫柔細膩並存的特質。
空間規劃上,客廳與餐廚合而為一,形成開放社交區;臥室隱於夾層上方,確保隱私與安靜;浴室延續簡潔溫暖的調性,維持視覺與觸覺的連貫性。此設計不僅滿足居住機能,更以立體構築與材質交融,讓生活在每個時刻都被舒適與美感環繞。